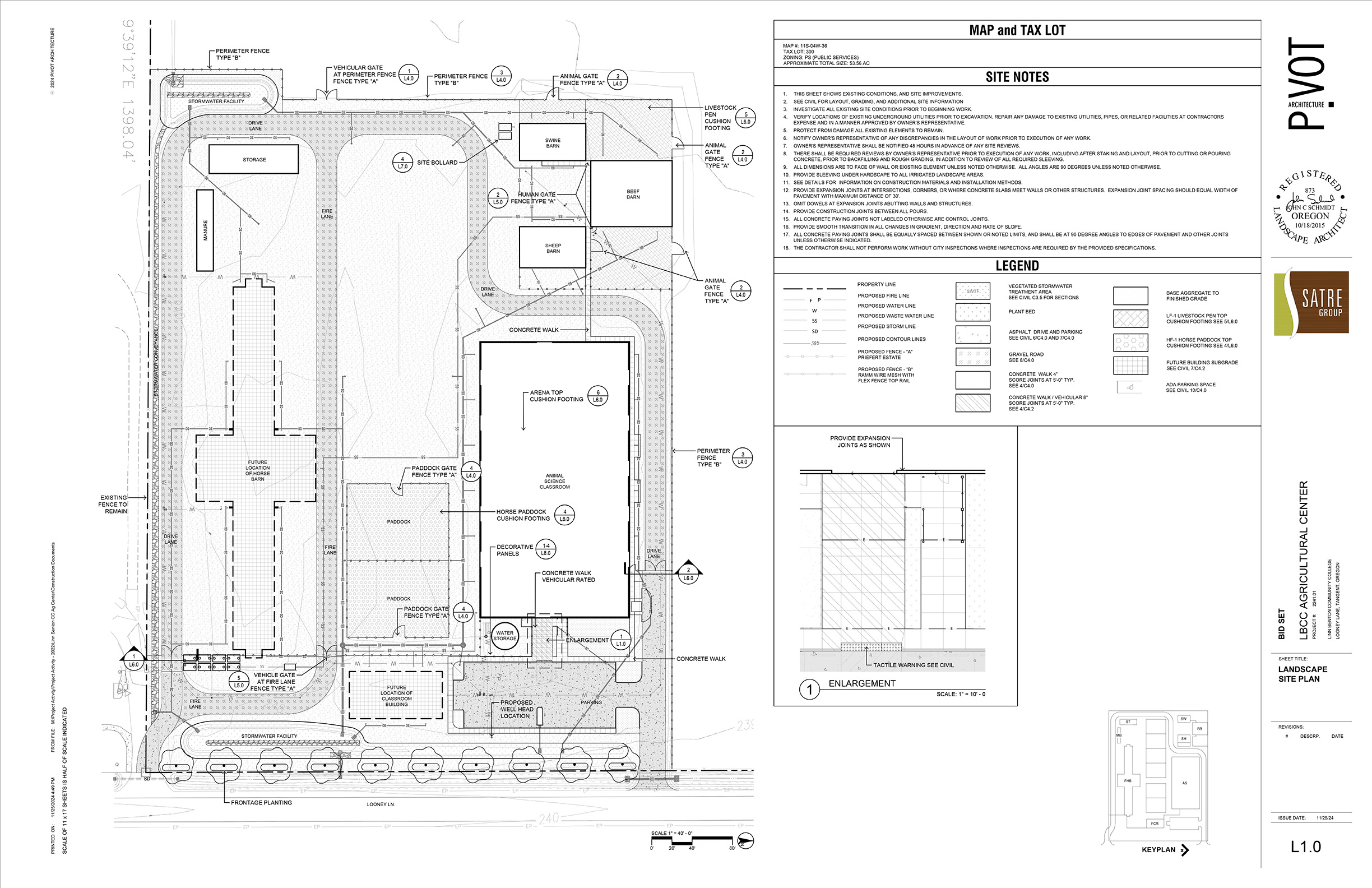
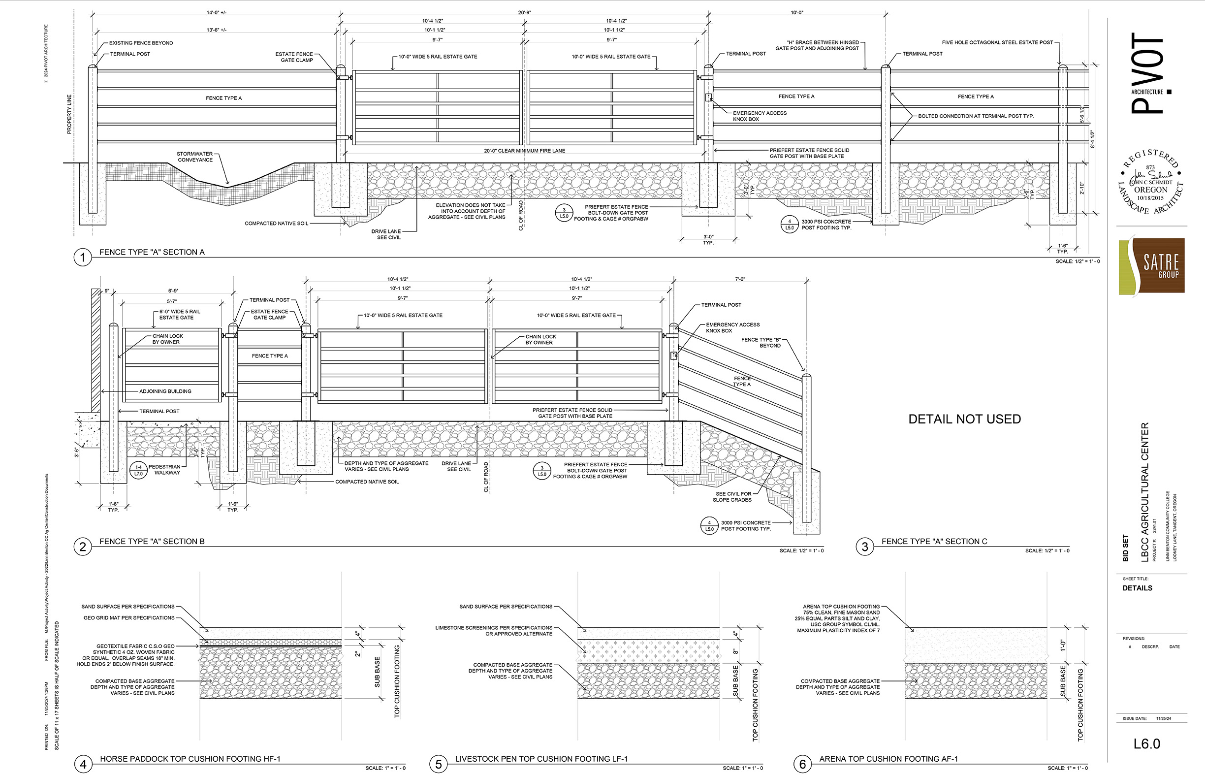
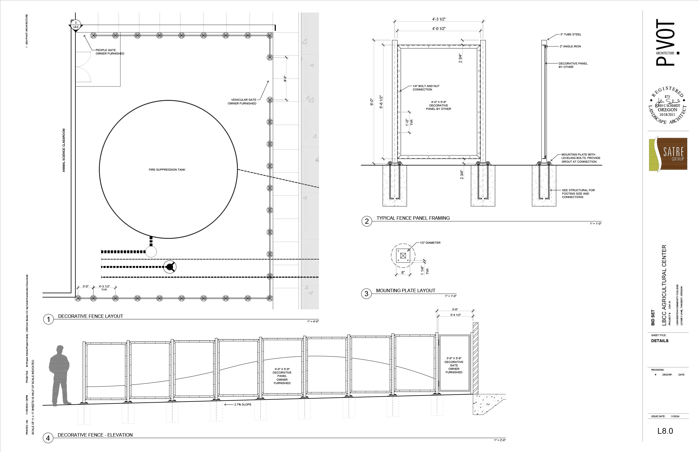
The Satre Group was part of the design team working to bring higher education and job training for students looking to enter the agricultural field to Linn-Benton Community College. The proposed Agricultural Center includes classroom space, conference/meeting space, a multipurpose arena, structures for the housing of various animals as well as for the storage of related animal feed, tools, equipment, and more. Site improvements will include truck and trailer access, and paddock and pasture area. The services provided by The Satre Group included land use application, site plan, and production of construction documents.



